дом с балконом и гаражом

Внушительная площадь дома не могла не сказаться на конечной стоимости строительства, но именно этот проект никак не рассчитывает на звание дачного домика, скорее перейдя в разряд действительно элитной коттеджной застройки.
Тем не менее, несмотря на этот факт, итоговая цена постройки дома по проекту АРТГ-PRO-282-38-319-2 придется по душе многим, кто хочет получить целый спектр помещений на все случаи жизнь, включая не только гараж и сауну, но и несколько технических помещений и встроенных гардеробных.

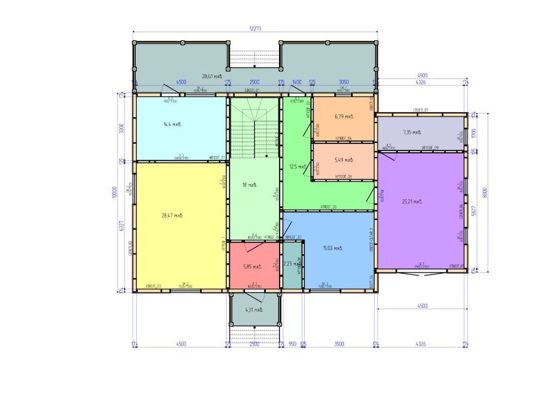
ПРОЕКТ АРТГ-PRO-282-38-319-2


  • площадь:319 М.КВ.
  • размеры:16.8х14
  • технология: каркас
  • материнский капитал: да
  • кредит: да





₽ от 4 306 500 до 6 539 500

8-812-509-31-32
ПроектыЗадать вопрос

закажите
свой проект

Рассчитаем стоимость строительства дома по вашему проекту!
Получите точную стоимость строительства по проекту заказчика без посещения офиса.

ЗАКАЖИТЕ
СВОЙ ПРОЕКТ

Рассчитаем стоимость строительства дома по вашему проекту!
Получите точную стоимость строительства по проекту заказчика без посещения офиса.

Наши объекты


краткий перечень

Построим каркасный дом

под ключ

Любые архитектурные формы!
От простеньких дачных домов до коттеджей повышенной комфортности.
Итоговая стоимость строительства дома зависит лишь от сметной цены на строительные материалы согласно вашего проекта.


вам необходима консультация?

Бесплатный выезд специалиста на ваш участок для получения консультации на месте. Вы сможете посмотреть проекты домов, узнать стоимость их строительства, получить компетентные ответы на свои вопросы и все это не покидая своего участка на безвозмездной основе.

заказать консультацию