Гараж с эксплуатируемой крышей

Интересная реализация проекта загородного дома с пристроенным гаражом и эксплуатируемой крышей гаражного блока.
Проект был разработан с учетом пожеланий заказчика и несмотря на кажущуюся одиозность вполне укладывается в средний ценовой сегмент даже с учетом строительства дома в комплектации с фасадной и внутренней  "под ключ".
В доме предусмотрены не только четыре спальных комнаты, одни з которых находится на первом этаже, но и помещение для сауны, которое будущие хозяева дома желают разместить на втором этаже своего дома.
Вполне естественно, что учитывая пожелания потенциальных заказчиков, мы можем изменить не только внутреннее планировочное пространство, но и общий метраж дома таким образом уложившись в необходимую для заказчика сумму выделенную на строительство дома.


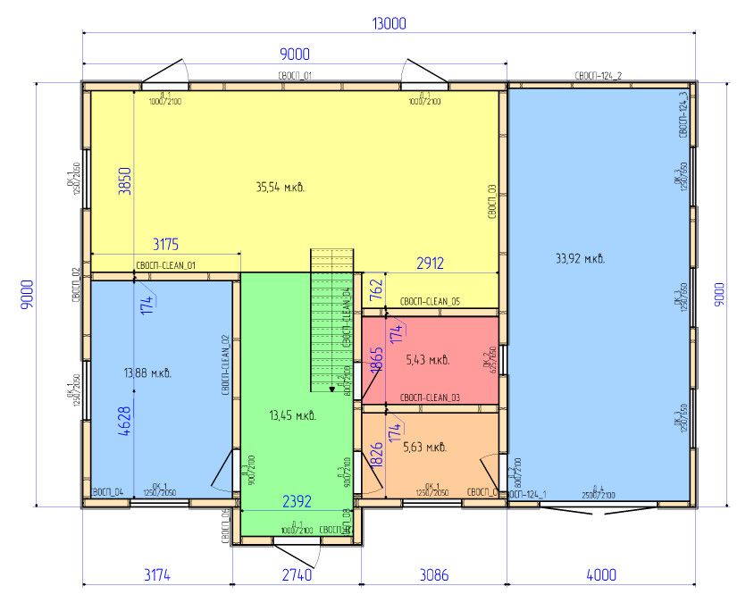
ПРОЕКТ АРТГ-PROKS-198-0-198-2


  • площадь:198 М.КВ.
  • размеры:13х9
  • технология: каркас
  • материнский капитал: да
  • кредит: да



₽ от 2 673 000 до 4 059 000

8-812-509-31-32
ПроектыЗадать вопрос

ЗАКАЖИТЕ
СВОЙ ПРОЕКТ

Рассчитаем стоимость строительства дома по вашему проекту!
Получите точную стоимость строительства по проекту заказчика без посещения офиса.

Наши объекты


краткий перечень

Построим каркасный дом

под ключ

Любые архитектурные формы!
От простеньких дачных домов до коттеджей повышенной комфортности.
Итоговая стоимость строительства дома зависит лишь от сметной цены на строительные материалы согласно вашего проекта.


вам необходима консультация?

Бесплатный выезд специалиста на ваш участок для получения консультации на месте. Вы сможете посмотреть проекты домов, узнать стоимость их строительства, получить компетентные ответы на свои вопросы и все это не покидая своего участка на безвозмездной основе.

заказать консультацию