Одноэтажный каркасник со вторым светом

Перед вами один из индивидуальных архитектурных проектов каркасных домов со вторым светом, разработка которого была произведена по представленным заказчиком данных. 
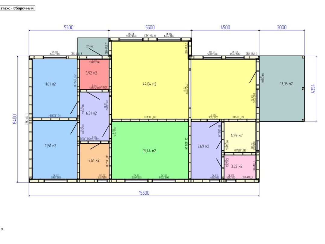
После строительства дома, вы получаете три больших спальных комнаты, тамбур, сауну, душевую комнату и два санузла, что покрывает практически 90% запросов потенциальных заказчиков.
И без того просторная гостиная комната обзавелась вторым светом, что привносит еще больший объем в помещении, а отдельная секция кухонной зоны позволяет не только вместить всю бытовую технику, но и организовать столовую комнату, освободив при этом пространство в гостиной зале.
  


ПРОЕКТ АРТГ-PRO-132-16-148-1


  • площадь:148 М.КВ.
  • размеры:15.3х8.4
  • технология: каркас
  • материнский капитал: да
  • кредит: да



₽ от 1 998 500 до 3 034 000

8-812-509-31-32
ПроектыЗадать вопрос

закажите
свой проект

Рассчитаем стоимость строительства дома по вашему проекту!
Получите точную стоимость строительства по проекту заказчика без посещения офиса.

ЗАКАЖИТЕ
СВОЙ ПРОЕКТ

Рассчитаем стоимость строительства дома по вашему проекту!
Получите точную стоимость строительства по проекту заказчика без посещения офиса.

Наши объекты


краткий перечень

Построим каркасный дом

под ключ

Любые архитектурные формы!
От простеньких дачных домов до коттеджей повышенной комфортности.
Итоговая стоимость строительства дома зависит лишь от сметной цены на строительные материалы согласно вашего проекта.


вам необходима консультация?

Бесплатный выезд специалиста на ваш участок для получения консультации на месте. Вы сможете посмотреть проекты домов, узнать стоимость их строительства, получить компетентные ответы на свои вопросы и все это не покидая своего участка на безвозмездной основе.

заказать консультацию