Четырехскатная крыша на одноэтажном каркаснике

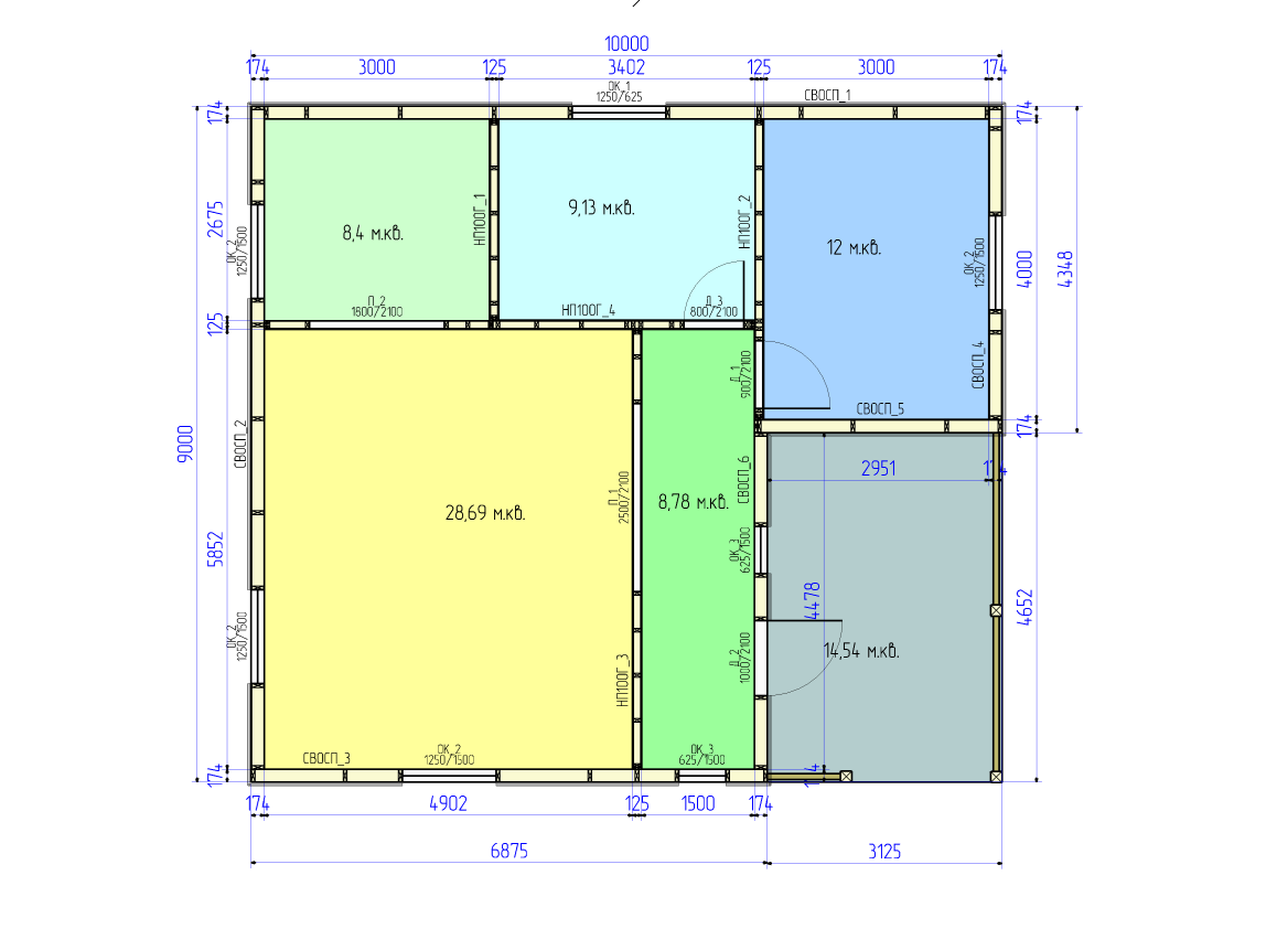
Классика загородного домостроения, одноэтажный каркасник с одной спальней, отдельным помещением под кухню и большой комнатой совмещенной с душевой и постирочной.

Учитывая, что на площади 90 м.кв. вполне можно было спроектировать еще одну вместительную комнату для сна, многим довольно непривычно видеть душевую подобных размеров, но именно таким видел свой будущий дом один из наших заказчиков, что и нашло свое воплощение в жизни.

Построив дом на свайно-винтовом фундаменте вы можете быть уверены, что сэкономили не только свои сбережения, но и учитывая водонасыщенные грунты получили действительно надежный свайный фундамент который прослужит вам долгие годы.

ПРОЕКТ АРТГ-PRO-76-15-90-1


  • площадь:90 М.КВ.
  • размеры:10х9
  • технология: каркас
  • материнский капитал: да
  • кредит: да




₽ от 1 215 000 до 1 845 000

8-812-509-31-32
ПроектыЗадать вопрос

ЗАКАЖИТЕ
СВОЙ ПРОЕКТ

Рассчитаем стоимость строительства дома по вашему проекту!
Получите точную стоимость строительства по проекту заказчика без посещения офиса.

Наши объекты


краткий перечень

Построим каркасный дом

под ключ

Любые архитектурные формы!
От простеньких дачных домов до коттеджей повышенной комфортности.
Итоговая стоимость строительства дома зависит лишь от сметной цены на строительные материалы согласно вашего проекта.


вам необходима консультация?

Бесплатный выезд специалиста на ваш участок для получения консультации на месте. Вы сможете посмотреть проекты домов, узнать стоимость их строительства, получить компетентные ответы на свои вопросы и все это не покидая своего участка на безвозмездной основе.

заказать консультацию