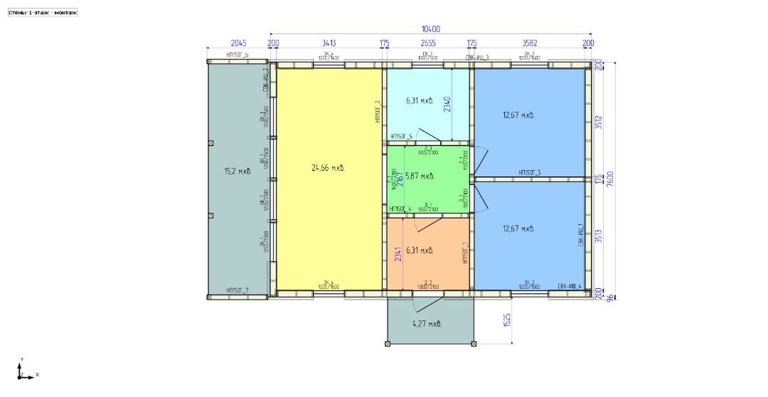
Доступный по стоимости проект каркасного дома со вторым светом и террасой. На площади дома (77 м2.) Нашлось место не только для двух вместительных спален, но и для просторной гостиной комнаты (34 м.кв.) совмещенной с кухонной зоной, отдельной душевой комнаты (6.6 м.кв.) и дополнительным санузлом ( 2.1 м.кв. ). Традиционный набор для одноэтажного дома средней площади в котором без особых стеснений может проживать семья из 3-4 человек. Как уже само собой разумеющееся является наличие крытой террасы (11м.к.в) и крыльца (5 м.кв).. что уже само по себе подразумевает хоть и незначительное, но все-же удорожание итоговой стоимости строительства каркасного дома.
Дом с отделкой фасада - фиброцемент DECOVER и панорамными окнами с двойным пакетом энергосбережения.
Двухэтажный каркасный дом с вальмовой крышей
Дом с полноценной высотой второго этажа 2500 мм. на свайном фундаменте.
Двухэтажный каркасный дом с террасой
Строительство каркасного дома для постоянного проживания на участке ИЖС во Всеволожском районе.
Фасадная отделка дома вагонкой ШТИЛЬ
Популярный проект дома с улучшенной планировкой. Отделка фасада дома - вагонка ШТИЛЬ с окраской.
Одноэтажный каркасный дом
Строительство экономичного одноэтажного дома в Ленинградской области. Оштукатуренный вариант наружных стен.
Терраса в каркасном доме
Отделка фасада дома качественным сайдингом DECKE
Уютный каркасный дом 2 этажа
Двухэтажный каркасный дом с мансардным этажом
В комплектации дом под крышу
Возведение дома на фундаменте заказчика в комплектации под крышу
Каркасный дом с в комплектации под ключ
Проектирование и монтаж каркасного домокомплекта в комплектации под ключ
краткий перечень
Построим каркасныйдом
под ключ
Любые архитектурные формы! От простеньких дачных домов до коттеджей повышенной комфортности.
Итоговая стоимость строительства дома зависит лишь от сметной цены на строительные материалы согласно вашего проекта.
вам необходима консультация?
Бесплатный выезд специалиста на ваш участок для получения консультации на месте. Вы сможете посмотреть проекты домов, узнать стоимость их строительства, получить компетентные ответы на свои вопросы и все это не покидая своего участка на безвозмездной основе.